top of page

Découvrez nos travaux 

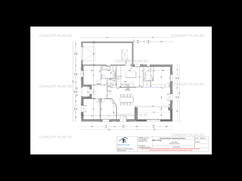
Projet d' extension d'une maison individuelle

Lieux : 33200 Bordeaux Caudéran
Date : Aout 2025
Maitre d'ouvrage : client particulier

Projet de rénovation d'un bâtiment

Projet de surélévation d'une maison individuelle

Lieux : 24100 Bergerac
Date : octobre 2022 / juillet 2023
Maitre d'ouvrage : client particulier
Lieux : 33560 Carbon Blanc
Date : avril 2025
Maitre d'ouvrage : client particulier

Projet de rénovation et extension d'une maison individuelle

Lieux : 33610 Cestas
Date : juin 2025
Maitre d'ouvrage : client particulier

Projet de rénovation et extension d'une maison individuelle

Lieux : 33140 Villenave d'Ornon
Date : avril 2025
Maitre d'ouvrage : client particulier

Projet de construction d'un garage d'une maison individuelle

Lieux : 33360 Camblanes et Meynac
Date : février 2023
Maitre d'ouvrage : client particulier

Projet de surélévation d'une maison individuelle

Lieux : 33610 Cestas
Date : juillet 2021
Maitre d'ouvrage : client particulier

Projet de rénovation d'un bâtiment

Lieux : 24100 Bergerac
Date : octobre 2022 / juillet 2023
Maitre d'ouvrage : client particulier
bottom of page